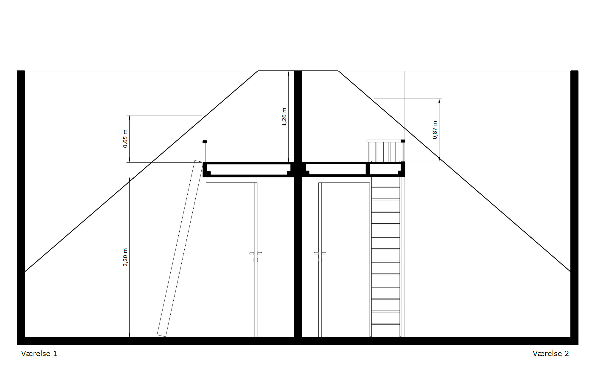
Hemse