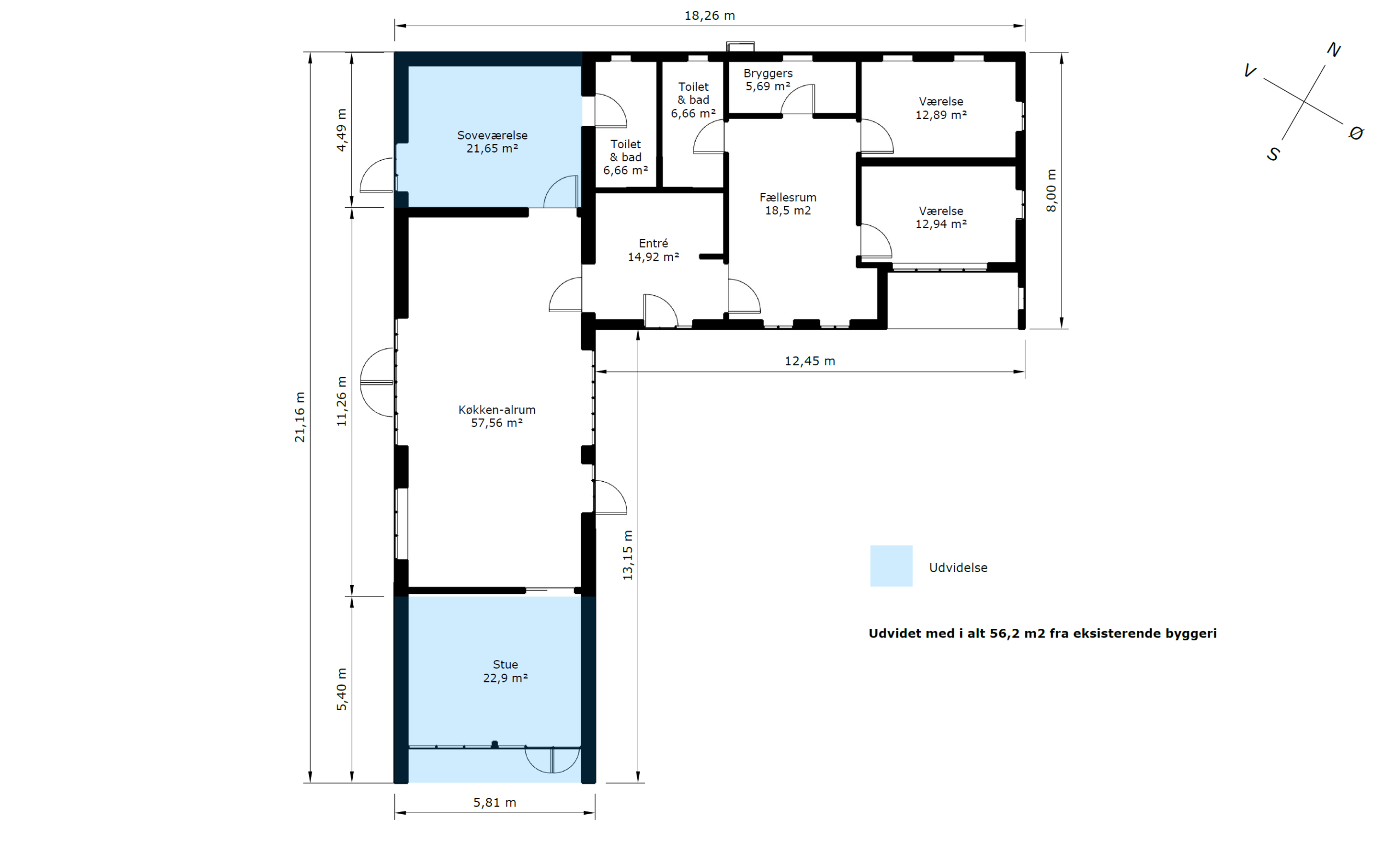
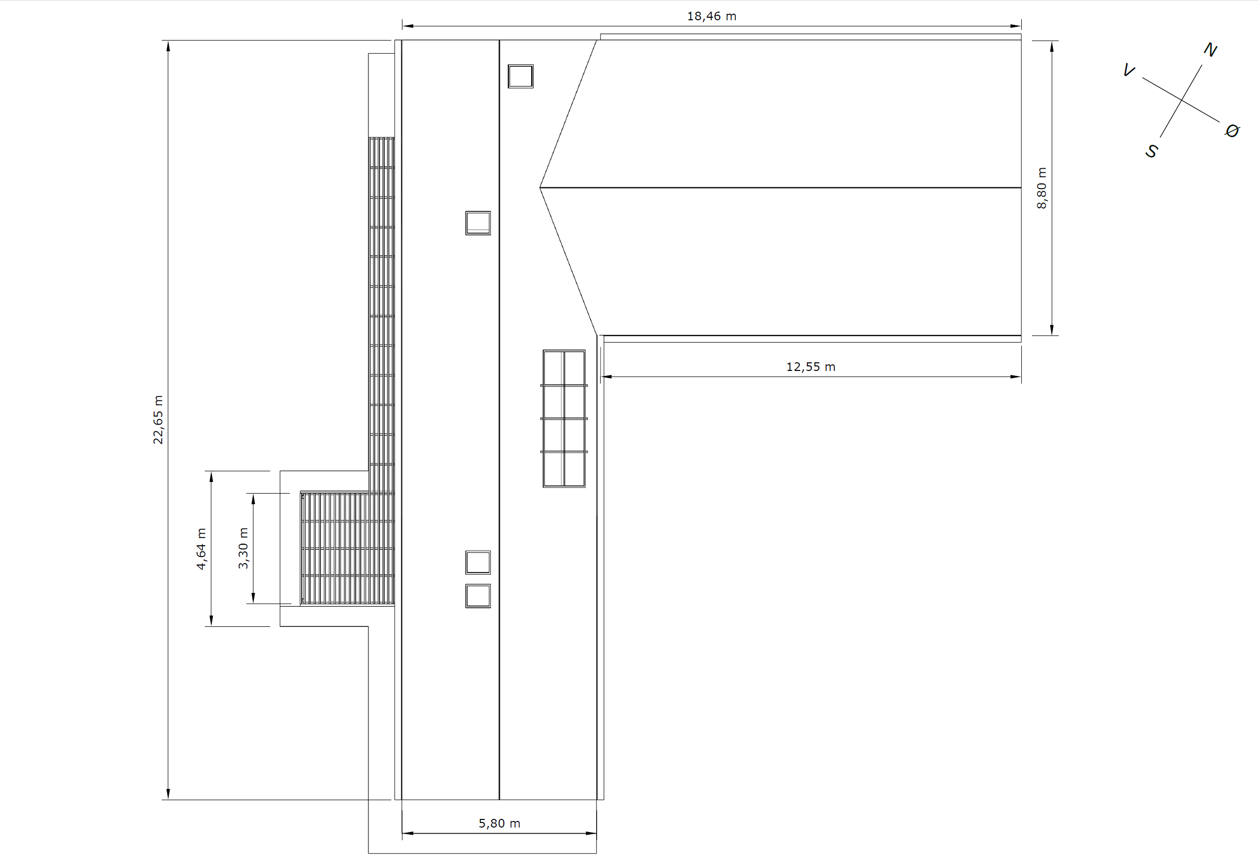
Udbygning, stil & indretning